Ett av de första stegen i ditt husbyggnadsprojekt är att designa ditt timmerhus. Du kanske har en tydlig bild av dina drömmars timmerhus, eller så vill du fortfarande undersöka dina möjligheter. Vi vill hjälpa dig att hitta dina drömmars timmerhus där din familj kommer att älska att tillbringa tid. I det här blogginlägget kommer vi att berätta hur du kan anpassa modeller i vår portfölj.
En fördesignad timmerhusmodell från Honka är ett kostnadseffektivt alternativ. Det går även snabbt och enkelt att bygga. En mängd olika modeller finns tillgängliga, från traditionella enplanshus i timmer till moderna timmerhus med stora fönster. I vår portfölj finns något för alla.
Det är dock inte alla som hittar sina drömmars timmerhus bland våra modeller. Det är därför värt att komma ihåg att du kan anpassa modellerna i Honkas portfölj. Se våra modeller som en preliminär utgångspunkt för dina drömmars timmerhus, eftersom de kan modifieras fritt. Vår designavdelning hjälper dig gärna att designa ett hus som tillgodoser dina behov och önskemål – baserat på en modell från vår portfölj, om du så önskar.
Hur anpassas en timmerhusmodell från Honka?
Våra timmerhusmodeller kan modifieras närmast i det oändliga, och du kan till och med kombinera modeller. Det tydliga arkitektoniska språk våra modeller talar gör det möjligt att anpassa dem på ett kostnadseffektivt sätt. Nedan hittar du de vanligaste modifikationerna av fasader och insida.
Ändringar av fasaden
Det är ofta fasaden, husets visuella fokus, som verkligen visar upp en husbyggares preferenser. En fasad kan influeras av en byggnads arkitektoniska språk, fönstrens och dörrarnas storlek och form, deras placering och antal, och fasadens material och färger. Exempelvis kan taket, fönstren och ytmaterialet modifieras.
Ändringar av taket:
- Man kan ganska enkelt ändra en modells takform genom att exempelvis ha ett sadeltak istället för ett pulpettak.
- Takmaterialet kan ändras enligt dina önskemål.
- Intradosbeklädnad kan placeras på takfotsstrukturens lägre eller övre yta. Med det senare alternativet är de vackra, bärande bjälkarna synliga, vilket skapar en modern takfotsstruktur med låg vikt. Detta har ofta en dramatisk effekt på en byggnads utseende.
Ändringar av fönstren:
- Om modellen tilltalar dig, men har för få eller för små fönster, kan du lägga till fler eller göra dem större. Fönstrens antal och storlek kan även minskas.
- Varför inte ändra modellens generella utseende genom att ändra fönstrens placering?
- Alternativt kan du lägga till fönster med blyinfattade rutor för att skapa ett mer minnesvärt intryck. Du kan även utelämna gallerverket som ingår i modellen.
- Fjällpaneler kan också anpassas.
Andra modifikationer:
- Väljer du ditt eget färgschema kan det ha stor inverkan på husets utseende och det intryck det lämnar. Ändra helt enkelt färgerna i modellen efter eget tycke. Läs inredningsarkitekten Maru Hautalas tips om hur man väljer mörka färgtoner till timmerhusfasader.
Ändringar av interiören
Du kan anpassa interiören i timmerhusmodellerna så att de tillgodoser din familjs behov. När du gör detta, kom ihåg att de arkitekter som designade våra modeller har skapat de mest välfungerande planlösningarna med utgångspunkt i många års erfarenhet, hundratals designer och en förståelse för vad som fungerar. Rådgör därför alltid med en Honka-expert och förklara idéerna som ligger till grund för de ändringar av interiören som du föreslår.
Ändringar av interiören:
- Planlösningen för Honka-modellen visar rummens planerade layout. Du kan delvis ändra denna – exempelvis genom att låta två rum byta plats med varandra – eller helt ändra planlösningen.
- Du kan ändra storleken på rummen genom att flytta på innerväggarna.
- Gör en timmerhusmodell längre för att skapa mer inomhusutrymme. Obs! När du skapar större utrymme, ändra inte bredden på modellens ram. Detta skulle öka kostnaderna betydligt mer än en förlängning av modellen.
Ändrade materialval för innerväggar:
- Välj innerväggarnas ytmaterial så att det skapar en unik känsla i ditt timmerhus. Istället för stockar kan du välja tegelväggar eller gipsskivor för mellanväggar. Här kan du läsa inredningsarkitekten Maru Hautalas tips om hur du väljer täckande och ljusa färgtoner till inredningen.
Lounatuuli — ett exempel på en anpassning av en modell som tillgodoser den boendes behov
För några år sedan byggde två av Honkas kunder, Susanna och Mika Laine, ett vackert Lounatuuli-timmerhus i centrala Nyslott. Deras version av Lounatuuli-modellen är ett bra exempel på anpassning av fasaden och interiören. Modellen anpassades till att bli det perfekta hemmet för familjen Laine.
Fasadmodifikationer av Lounatuuli
Familjen Laine lät göra New England-arkitekturen på sin Lounatuuli-fasad en aning mer traditionell – utan att skymma modellens ursprungliga identitet.
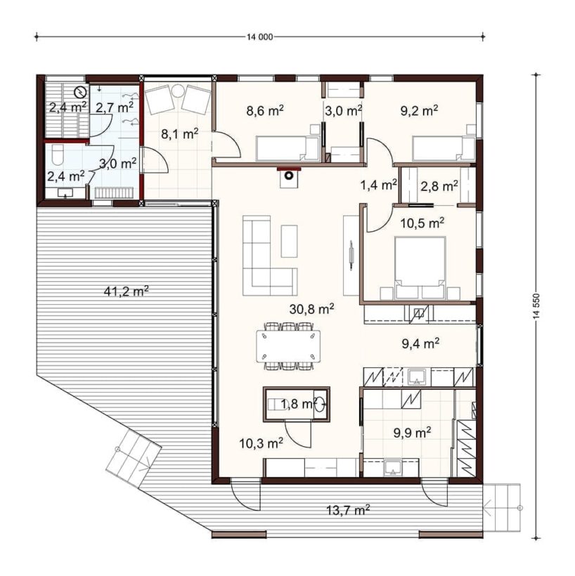
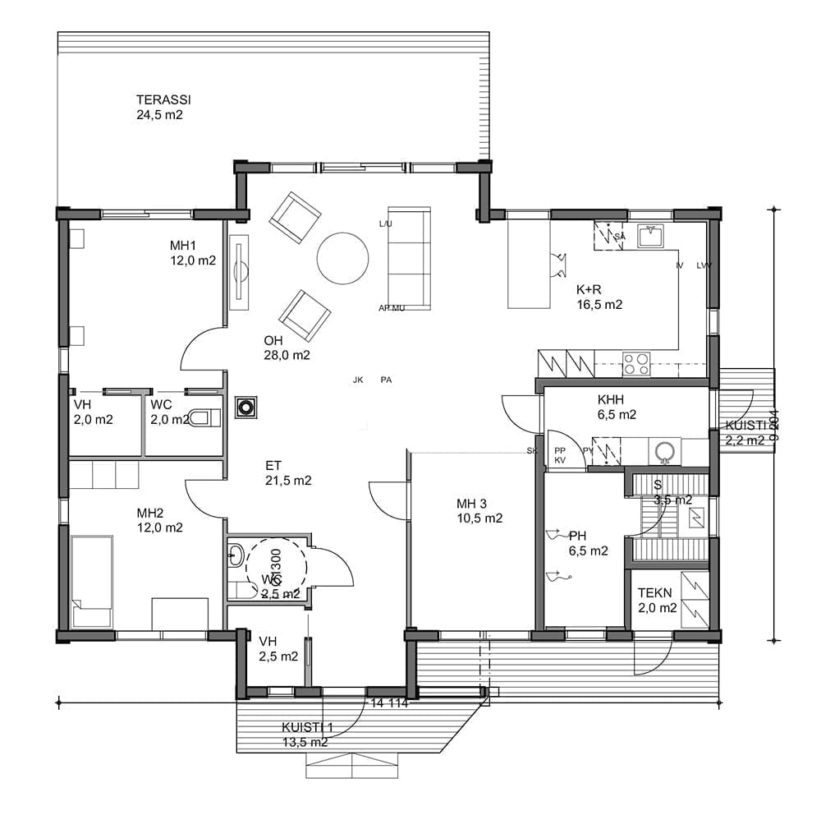
Lounatuuli-modellen från Honkarakennes portfölj visas till höger, och familjen Laines fasad syns till vänster. Timmerhuset är en modifierad version av vår Lounatuuli-modell.
Fasaden modifierades t.ex. genom att fönstren som visas till vänster flyttades. Fönstren till höger byttes mot glasdörrar så att det skulle finnas två utgångar till altanen. Lounatuuli-modellen på vår webbplats har fönster med blyinfattade rutor — familjen Laine valde att smycka sina dörrar och fönster med vackra, vita karmar. Fasaden på detta förtjusande timmerhus kröns av ett runt fönster som placerats ovanför dörren.
Ändringar av Lounastuulis interiör
Redan från början designade familjen Laine sin version av Lounatuuli som ett hem för resten av livet, som skulle kunna öppnas upp och modifieras när deras två barn flyttar hemifrån. Följaktligen ändrade de inomhusytorna och layouten i den ursprungliga Lounatuuli-modellen.
Till höger syns planlösningen för Lounatuuli från Honka-portföljen, och familjen Laines planlösning visas till vänster.
Layouten i originalmodellen (den övre bilden) har omarbetats. Rummens placering och storlek har ändrats, och en toalett och en walk-in-garderob har lagts till i det största sovrummet. Såväl toaletten som walk-in-garderoben har skjutdörrar, så det är möjligt att lägga till utrymme utan att öka golvytan i huset. Sammantaget har ändringarna resulterat i ett timmerhus som kommer att tillgodose familjen Laines behov i många år och vara en njutning att bo i.
Har du hittat en Honka-husmodell som du skulle vilja anpassa? Det här är nästa steg
Om du hittar en modell som tilltalar dig, kom ihåg att du kan anpassa den så att den passar din familjs behov. Din lokala Honka-återförsäljare hjälper dig med detta.
Om ingen av modellerna i vår portfölj riktigt passar kan lösningen vara ett skräddarsytt timmerhus. Detta innebär att du designar ett hus som tillgodoser dina personliga behov med hjälp av en expert från Honka. Läs mer om vår designavdelning här.
Ladda ner vår broschyr
Vår broschyr ger dig inspirerande idéer och nyttig information, när du planerar att bygga ditt drömhus eller sommarstuga.
Kontakta våra experter på timmerhus
Vill du ha mer information eller diskutera en lösning som passar dina behov? Lämna dina kontaktuppgifter så kontaktar vi dig snarast!
Kontakta oss 
			 
		
				 
		
				 
		
				 
		
				 
		
				 
		
				 
		
				 
		
				 
		
				 
		
				 
		
				 
		
				 
		
				 
		
				 
		
				 
		
				