Susanna och Mika Laine ville bygga ett timmerhus nära centrala Nyslott. Det fanns dock inte så många tomter som var tillgängliga för nybyggen, och paret hölls även tillbaka av de höga priserna på timmerhus. En dag kom så en egendom som försummats i 15 år ut på marknaden, och familjen Laine beslutade sig för att skrida till verket. Idag har den fallfärdiga byggnaden ersatts med ett stiligt hus i massivt trä. Modellen kallas Lounatuuli och är verkligt uppseendeväckande. Slutnotan var också en glad överraskning.
Familjen Laine visste redan från början att deras nya hem skulle byggas av ordentligt, massivt trä. Det enda som fick dem att avvakta så länge var det höga priset.
De satte sig dock in i ämnet och upptäckte att det finns ett mer kostnadseffektivt sätt.
”Vi har tidigare byggt ett hem av stora förtillverkade element, och när vi jämförde byggkostnaderna för båda såg vi att timmerhuset inte alls var dyrare!”, förklarar Mika Laine.


Både Susanna och Mika säger att hemligheten ligger i detaljerna. Tack vare Mikas noggranna budgetering, och den utförliga projektplanen och specifikationerna, äger nu familjen Laine ett hem i massivt trä med en väldigt funktionell golvyta.

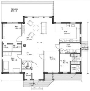
”Vi gjorde kloka kompromisser: exempelvis skulle en ökning av ett visst rums storlek ha inneburit att hela huset blev bredare. Honka tänkte också ut några riktigt smarta idéer, t.ex. skjutdörrarna, som gjorde att vi kunde utöka den användbara ytan utan att öka golvytan. Om du verkligen fokuserar på sådana saker kan du göra betydande besparingar”, förklarar Mika.


Redan från början designades Lounatuuli-huset så att det skulle bli deras hem i resten av deras liv. Tvåbarnsfamiljen ryms utan problem i det enda huset av massivt trä bland husen för veteraner som byggdes på 1940-talet åt familjerna till de soldater som kämpade i andra världskriget. När deras barn blir äldre och flyttar hemifrån kommer det att finnas gott om plats för två vuxna i timmerhuset.
”Vi ville visa det här vackra samhället respekt genom att välja ett klassiskt hus i massivt trä. Lounatuuli-husets exteriör fångade omedelbart vår blick med dess Long Island-stil. Vi ritade layouten på diagrampapper tillsammans med Mika, och Honkas arkitekter lade sista handen vid den”, säger Susanna.

En viktig del av beslutsfattandet var det faktum att timmer är ett ekologiskt byggmaterial som lämpar sig för moderna byggnader.
”Vi ville investera i högkvalitativa och beständiga inredningsmaterial och andra material utan att kompromissa med bekvämlighet och stil”, fortsätter hon.
Vi var helt övertygade om att ett monteringshus av massivt trä skulle bli minst 20 % dyrare än om vi investerade i andra material. Det visade sig att vi hade fel, eftersom vi lyckades påverka det totala priset genom ett antal smarta lösningar.
Mika Laine, kund


Nyckelfärdigt passar familjen Laines nuvarande fas i livet
Båda föräldrarna arbetar och har en stressig livsstil, och varken Susanna eller Mika ville att byggprojektet skulle ta för lång tid. En nyckelfärdig lösning passade därför perfekt.
Honkarakennes försäljningschef i Nyslott, Jari Tolvanen, rekommenderade paret ett team av skickliga snickare i hans professionella nätverk, och de byggde och monterade därefter det färdiggjorda timmerhuset så att det blev klart att flytta in i.
”Vi saknade både tid och kunskaper för att bygga huset. Tack vare Jari Tolvanens yrkeskontakter kunde vi flytta in nio månader efter att den gamla byggnaden rivits”, erinrar Mika.
Alla tidsscheman som avtalats med Honka hölls. Vårt samarbete med Honkarakennes försäljningschef, Jari Tolvanen, fungerade väldigt väl.
Susanna Laine, kund
Timmer doftar i flera år
Det viktigaste för familjen Laine, utöver den okomplicerade och enkla byggetappen, är att ha ett vackert och funktionellt hem i massivt trä som badar i ljuset som flödar in genom skjutdörrarna av glas i vardagsrummet och i sovrummet. Trädgården ligger bara några steg bort.
Några andra ljuvliga överraskningar som visade sig efter att vi flyttat in var lukten av trä, som kommer att hålla i sig i flera år, den fantastiska akustiken och hur massivt trä bevarar den varma luften inne och håller den kyliga luften ute, även när det är mycket frost.
”Det är verkligen härligt att bo i ett trähus. Varje gång när vi har varit borta en period, och kommer tillbaka, så möts vi direkt av lukten av trä när vi låser upp dörren. Det känns så rätt”, ler familjen Laine.

Mikas och Susannas tips för ett lyckat och kostnadseffektivt projekt för att bygga ett hus i massivt trä
- Utarbeta en detaljerad projektplan och specifikationer samt en kostnadsplan
- Håll ett öga på kostnaderna under hela projektet
- Spara pengar genom en smart layout och smarta kompromisser
- Påverka kostnaderna genom ett genomtänkt och tidlöst val av byggmaterial
- Låt byggproffs sköta de arbetsuppgifter som kräver specialkunskaper
Kontakta våra experter på timmerhus
Vill du ha mer information eller diskutera en lösning som passar dina behov? Lämna dina kontaktuppgifter så kontaktar vi dig snarast!
Kontakta oss 
			 
		
				 
		
				 
		
				