Víkendový dům HONKA k prodeji –
sleva 1,5 milionu Kč – PRODÁNO!
Životní prostředí je náš poklad a chráníme ho i tím, že dokážeme věci používat znovu a znovu. I zákazníci HONKA mají v různých etapách života různé potřeby a tak se domy poté, pokud přestanou svým majitelům vyhovovat, nabízejí dalším klientům.
A v čem je kouzlo srubových domů oproti zděným stavbám? Srubový dům lze jednoduše rozebrat a přestěhovat na jiný pozemek a tím možnosti jeho využití výrazně rozšířit. Při té příležitosti jej lze samozřejmě také upravit podle přání nového majitele.

A protože u nás máme rádi, když věci slouží dál, nabízíme aktuálně jeden takový víkendový dům HONKA za akční cenu a v úpravě z architektonického studia monom.
V nabídce je skutečně jen jeden exemplář, který se těší na svoji další životní dráhu. Uvedená cena je za dodávku HONKA bez DPH.
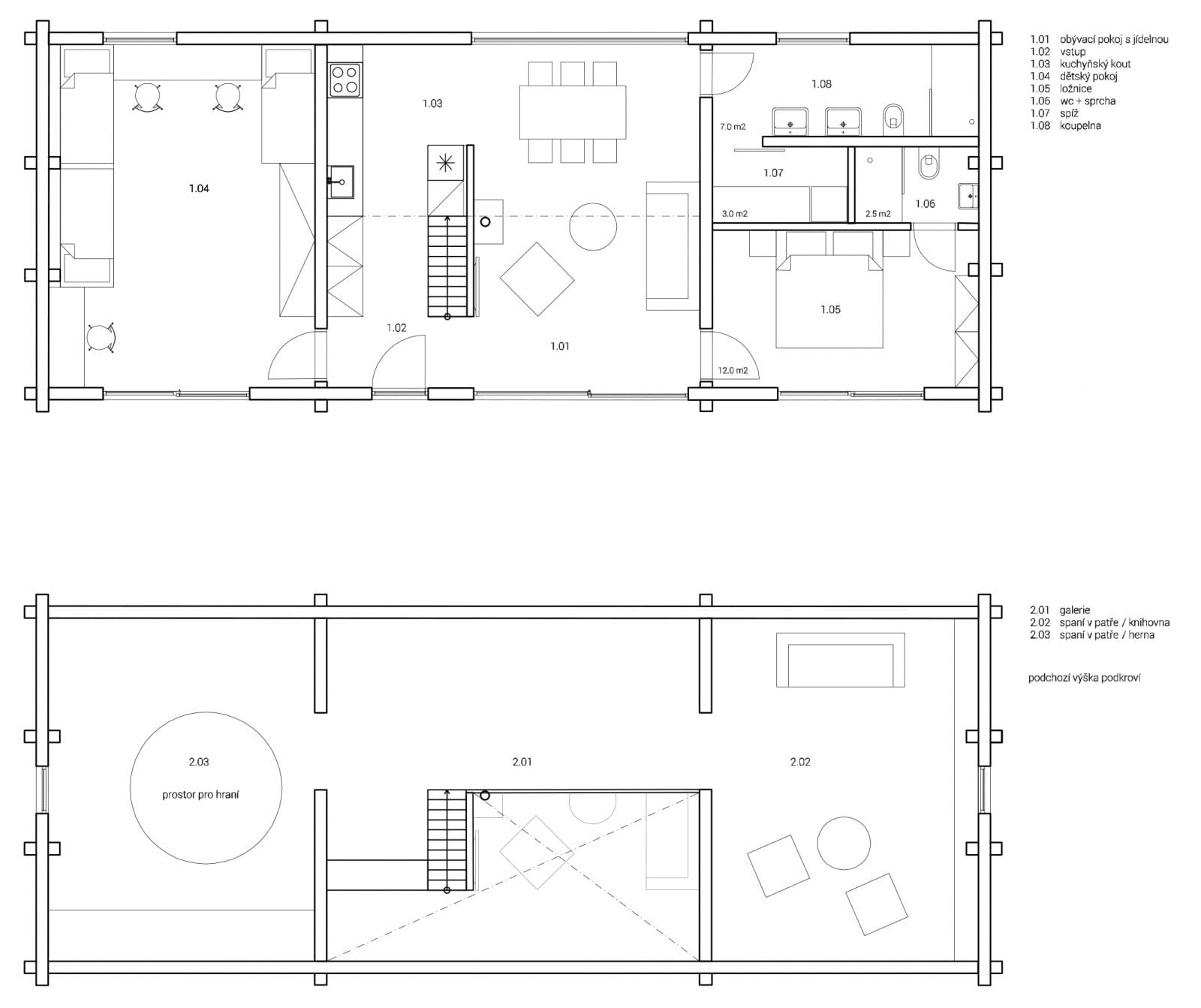
Dispozice domu : 4+kk
Celková plocha : 170 m2
Použitý typ trámu : HONKA RL 210 (kulatý trám ø 210 mm)
Původní cena: 6 120 000,- Kč
Akční cena : 4 620 000,- Kč




