PRODÁNO!
Rekreační chata LUMITÄHTI se skvělou slevou!
I my klademe důraz na udržitelnost a ekologii, a proto chceme, aby naše domy mohly sloužit dlouhá desetiletí. Srubový dům HONKA lze jednoduše rozebrat a přemístit a tím možnosti jeho využití výrazně rozšířit. Při této příležitosti jej samozřejmě také upravujeme podle přání nového majitele.
Aktuálně vám nabízíme rekreační chatu LUMITÄHTI z kulatého trámu HONKA RL 210 (průměr 210 mm), samozřejmě z finské polární borovice. Sleva u této chaty je 800.000 Kč! Stavba je momentálně rozebrána a připravena pro svého nového klienta.
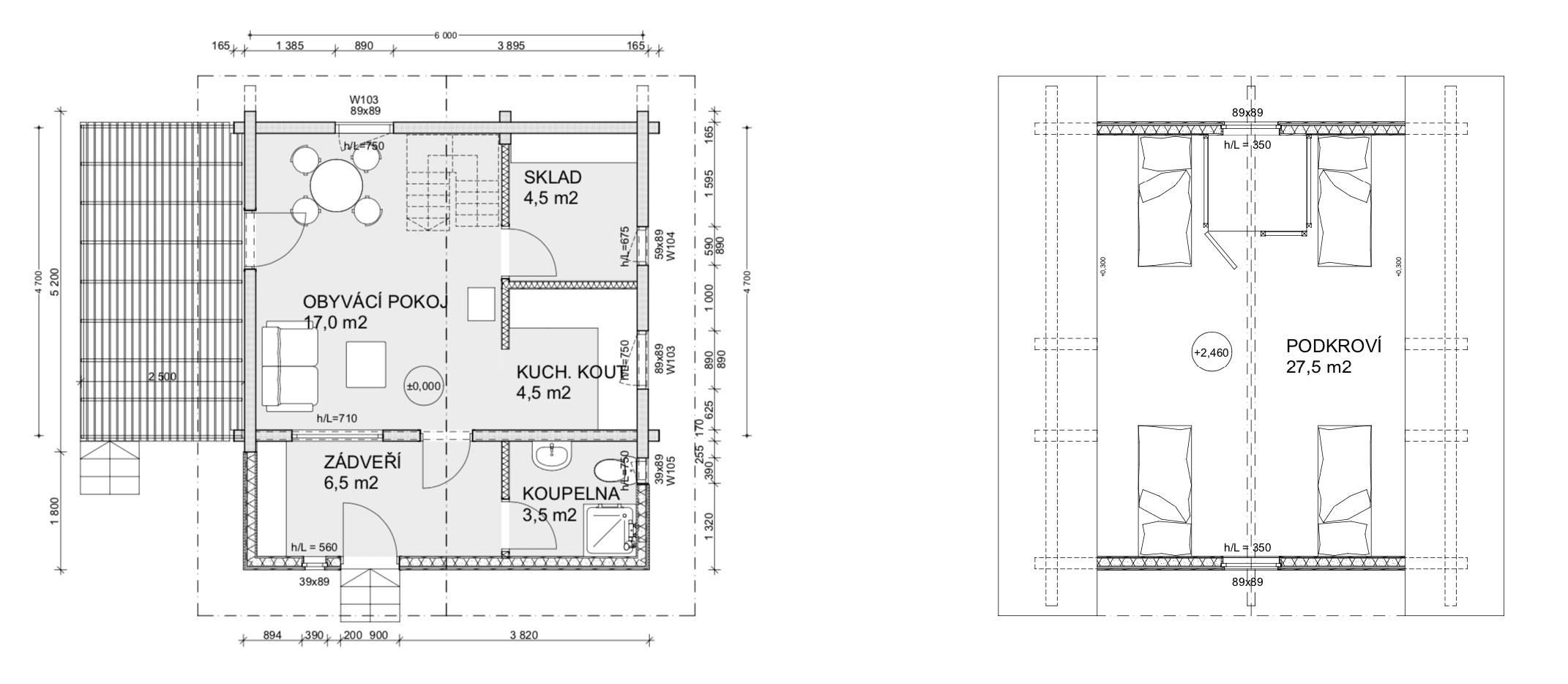
Celková užitná plocha : 65 m2
Použitý typ trámu : HONKA RL 210 (kulatý trám ø 210 mm)
Původní cena: 2 200 000,- Kč
Akční cena : 1 400 000,- Kč
V nabídce je pouze jeden exemplář. Pro více informací nás kontaktuje prostřednictvím našeho kontaktního formuláře nebo na tel. 602 225 055.
Ilustrační foto
Ilustrační foto

